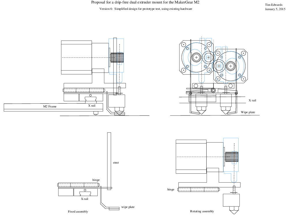
Okay, I said that was the last version for a while. So I lied. Anyway, I thought about how this system could be implemented with the fewest possible changes to the existing dual-extruder hardware. I came up with the following (attached). Mainly I wondered if it would be possible to insert a hinge between the existing motor mount plate and the X rail carriage. It's a tight fit, because there's not much clearance already between the heated bed plate and the top of the frame; raise it more than about 5mm and the plate is going to run into the screws holding the X rail onto the frame. But I think that it is possible to fit a standard hinge with a hinge pin diameter of 1/8", hinge leaf thickness 1/16", and hinge total width 2 1/2" (such as McMaster-Carr 15095A35) and still get 5 degrees of tilt to either side.
Hinging the existing motor mount puts the extruders at a 5 degree angle with respect to the plate during normal operation, which I think is probably tolerable, at least for prototyping purposes.
I also changed the gear rack part, which is now hinged at the bottom and travels up and down through a slot in the filament guide. Because the motor assembly is hinged at the bottom, the weight of the motors cause the assembly to want to fall to one side or the other. The extruder gears need only pull it from one side to the other, and once in the parked position, a light grip should suffice to keep it there. I think that a gear rack is not needed and the extruder gear can simply grab onto a rubber pad.
This looks doable, only requiring re-printing the two filament guides (with vertical slots, easy to generate with an STL import and a difference function in OpenSCAD), the hinge, and a handful of mostly printed parts in simple shapes that are easy to design. It could be just a weekend project. . .
Proposal for drip-free dual extruder system
Re: Proposal for drip-free dual extruder system
- Attachments
-
- Dual extruder---prototype idea (front and side views)
- dual_extruder_system_v6-1.png (51.38 KiB) Viewed 10789 times
-
- Dual extruder---prototype idea
- dual_extruder_system_v6-0.png (119.21 KiB) Viewed 10789 times
Re: Proposal for drip-free dual extruder system
I have found that the extruder being slightly off of vertical will degrade print quality a noticeable amount. Sorry 

Custom 3D printing for you or your business -- quote [at] pingring.org
Re: Proposal for drip-free dual extruder system
The quality of the solution will be determined by its ability to solve the drip problem. Degraded print quality will be an annoyance, but won't really affect a proof-of-concept test. If it works, then I'll order a spare bracket from MakerGear and hammer a 10 degree bend in it. Or something.
Re: Proposal for drip-free dual extruder system
In the end if it all works and you find the angle degrades quality then you could probably get away with an angle machined on the nozzle tip so its parallel with the bed when in position. The hotend when assembled would just be a directional piece that needs to be rotated in the correct orientation.
Re: Proposal for drip-free dual extruder system
I'd rather drill an angled hole in the bracket, since the bracket is just a chunk of metal, not a finely machined piece like the nozzle. . .jimc wrote:you could probably get away with an angle machined on the nozzle tip
Re: Proposal for drip-free dual extruder system
Although it would require redesigning all the brackets and printed parts and everything for the extruder mounts and filament drives, I don't see any reason why you can't mount the motors sideways, head-to-head. That way, the hot-ends could be so close as to be practically touching (with the subsequent worry of heat transfer between the two). The same idea of the hinged motor mounts and park position with wipe plates could still be implemented, although it would entail having each motor separately hinged; and to get one to move forward/up as the other moves backward/down, if you want the same kind of system that doesn't require an additional servo, would require some kind of pulley system. But I'm pretty sure it can be done.pyronaught wrote:Personally I'd like to see a dual extruder design where the extruders are oriented front to back rather than side by side